Project in Progress: – Design in Final Phase – Permits expected in March 2023. Site work to start in April 2023.
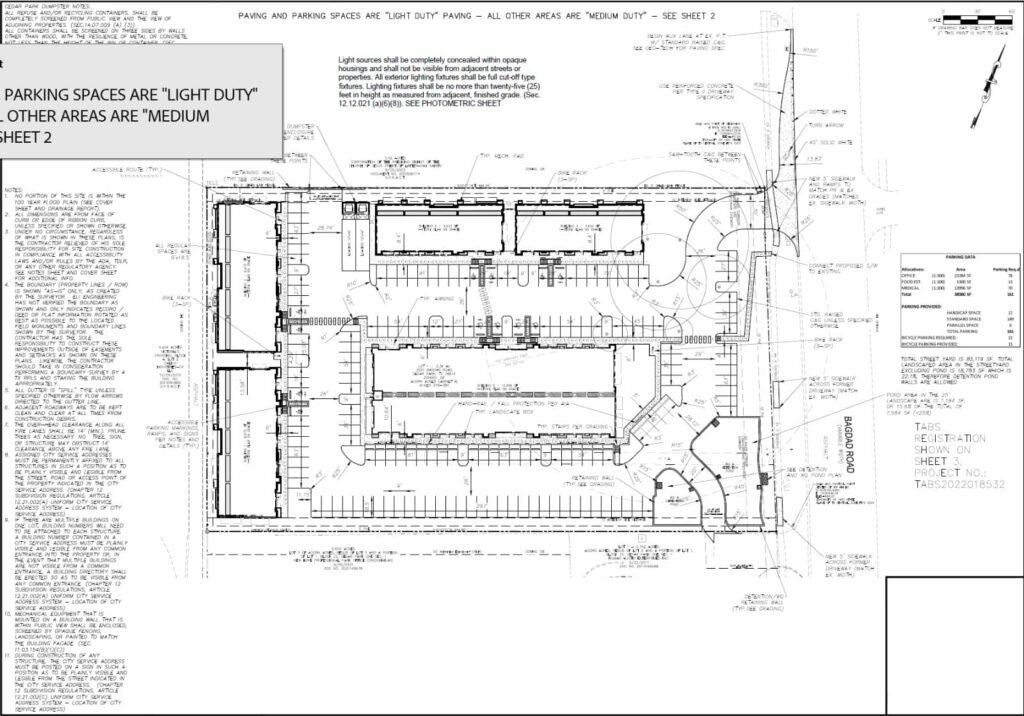
• Total – 3.36 Acres
• Total Sqft – 38,590 Sqft
+1 (512) 456-3654
info@construction.com
15161 Ronald Reagan Blvd, Unit# 408 Leander TX 78641
©2025 TheBuzzBrigade. All rights reserved.